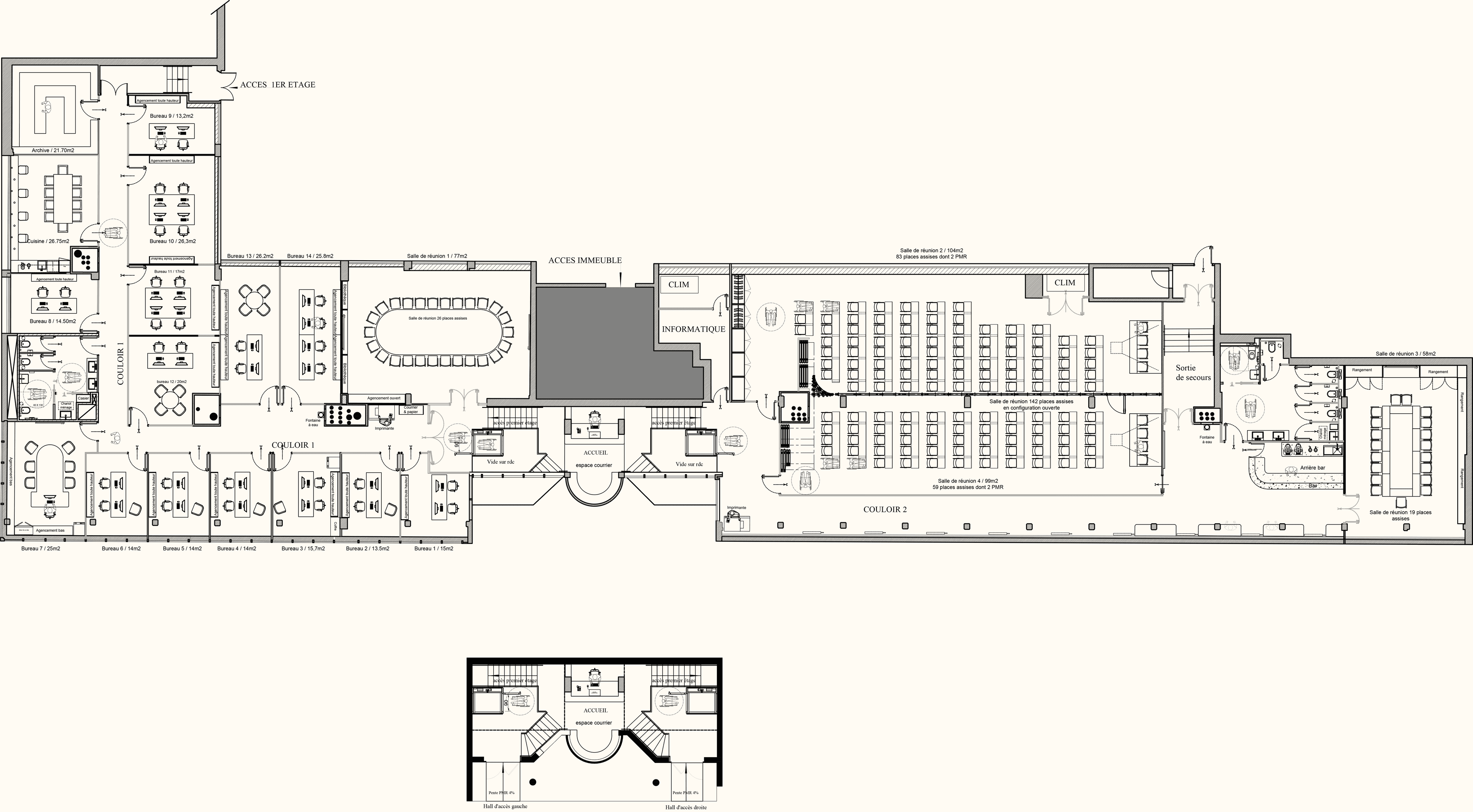
| Type | Siège social |
| Localisation | Bagnolet, Seine-Saint-Denis, France |
| Mission | Rénovation globale |
| Surface | 1000m2 |
| Date | 2023 |
| Photographe | Matthieu Barani |
Sur ce plateau d’une superficie de 1000m2 situé en Petite Couronne parisienne, l’essence du projet résidait dans la métamorphose d’une structure de faible luminosité composée uniquement de bureaux en un ensemble rationalisé, polyvalent et fonctionnel, répondant aux dernières normes en vigueur ainsi qu’aux nécessités des nouveaux occupants.









